当前位置:网站首页 > 板式冷却器(换热器) |
|
BR1.0板式冷却器 |
板式冷却器
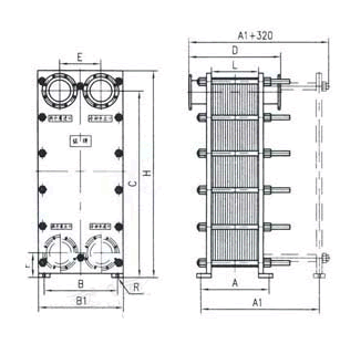
BR1.0板式冷却器由不锈钢压制的传热片、密封胶垫、夹紧螺栓和压紧板整机框架等零部件组成,板片带有增压的新型导流区。可耐各种腐蚀介质。传热效率高,冷热介质通过相邻板片流经各自通道进行换热。是相同流速下管壳式换热器的3倍以上。该冷却器使用安全可靠,结构紧凑,体积小,占地少,是同等换热面积管壳式冷却器的五分之一左右。板式冷却器片密封垫片全部采用免粘贴搭扣形式,减少运行维护成本,便于维修。松开压紧螺母即可进行清洗维护,更换胶垫或板片。板式换热器板片均为独立元件,可按用户要求随意增减换热面积和流程。密封槽设置泄液液道,各种介质不会串通,即使出现泄漏,也是向外排出。
参数
|
BR1.0
|
板片外形尺寸mm3
|
1975*722*0.7
|
单片换热面积m2
|
1.07
|
板间距mm
|
3.3
|
单流道截面积m2
|
0.00254
|
最大处理量m3/h
|
105-500
|
法兰通径DNmm
|
225
|
工作温度℃
|
≤180
|
工作压力Mpa
|
0.6,1.0
|
角孔直径mm
|
230
|

B=760 C=1927 F=252 E=425 B1=880 H=2140 R=13
BR0.5板式冷却器技术参数
序号
|
总换热面积m2
|
板片数(张)
|
L(mm)
|
D
|
A
|
A1
|
重量(kg)
|
1
|
70
|
71
|
316
|
730
|
490
|
995
|
2318/2412
|
2
|
80
|
81
|
348
|
770
|
528
|
1055
|
2412/2513
|
3
|
90
|
91
|
381
|
802
|
562
|
1130
|
2505/2617
|
4
|
100
|
101
|
414
|
845
|
604
|
1195
|
2600/2778
|
5
|
110
|
111
|
447
|
880
|
638
|
1270
|
2690/2822
|
6
|
120
|
121
|
480
|
920
|
680
|
1330
|
2787/2922
|
7
|
140
|
141
|
570
|
995
|
756
|
1470
|
2974/3128
|
8
|
150
|
151
|
635
|
1035
|
794
|
1545
|
3067/3232
|
9
|
160
|
161
|
701
|
1070
|
832
|
1605
|
3160/3336
|
10
|
180
|
181
|
791
|
1150
|
908
|
1745
|
3348/3538
|
11
|
200
|
291
|
947
|
1225
|
984
|
1885
|
3535/3742
|
12
|
210
|
211
|
802
|
1260
|
1022
|
1955
|
3628/3845
|
13
|
220
|
221
|
840
|
1300
|
1060
|
2020
|
3722/3947
|
14
|
230
|
131
|
878
|
1340
|
1098
|
2095
|
3815/4050
|
|
【返回】 |
|